impression

Achat Terrain à bâtir TREDREZ LOCQUEMEAU 22300 10930/62

Ref.
10930/62

Description

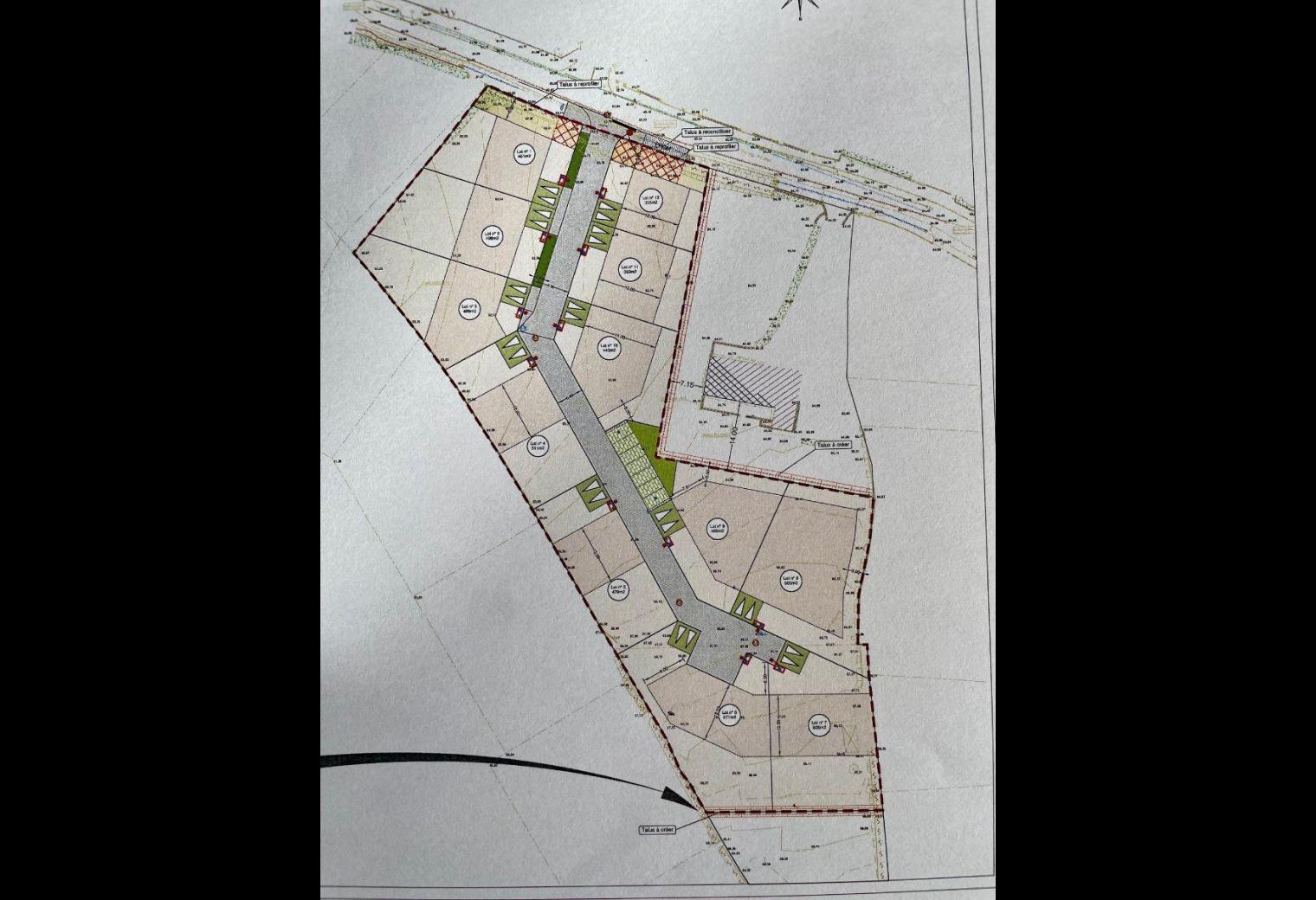
Terrain à Vendre à Trédrez-Locquémeau (22300) en Côtes-d'Armor (22)

La superficie totale du terrain est d'environ 685m². Le prix de vente est de 85750 euros.
Viabilisé dans un petit lotissement de 12 lots.
Plage a pieds, environnement paisible.

Pour plus d'informations sur ce terrain à vendre à Trédrez-Locquémeau, contactez notre office notarial.

Caractéristiques

Accès PMR
Non
Ascenseur
Non
Balcon
Non
Cave
Non
Cuisine
Non
Piscine
Non
Stationnement
Non
Terrasse
Non
Meublée
Non
Charges incluses
Non
Honoraires
3 600€
Type d'honoraires
Charge Acquereur

Calcul de frais d'actes

Type de bien

Votre résultat :

Emoluments proportionnels 1 074,11 €
Emoluments de formalités 900,00 €
Rémunération totale de l'office HT 1 974,11 €
TVA 394,82 €
Contribution de sécurité immobilière 82,15 €
Droits d'enregistrement 5 183,67 €
Total taxes 5 660,64 €
Total Frais d'acte 7 634,75 €
Prix total (hors frais de négociation éventuels) 89 784,75 €

Les émoluments de formalités peuvent varier à la hausse ou à la baisse en fonction de la nature du bien acquis. Le coût de 900 € HT est retenu à titre indicatif.

*Honoraires de négociation TTC.
Pour les ventes, les prix sont affichés hors frais de rédaction d'acte, hors droits d'enregistrement et de publicité foncière. Pour les locations, les honoraires comprennent les frais de visite, de constitution de dossier et de rédaction de bail (Article 5 de la loi n°89-462 du 6 juillet 1989 modifié par la loi n°2017-86 du 27 janvier 2017 - art. 124)